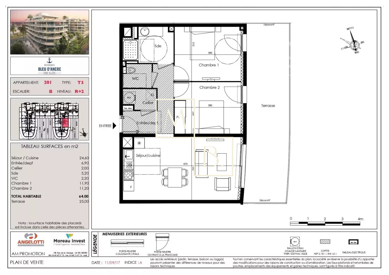
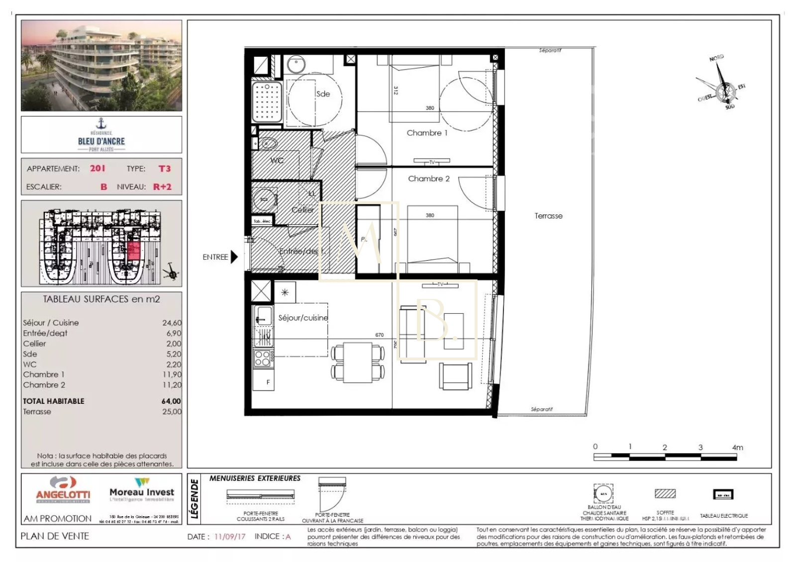
Appartement 3 pièce(s) 2 chambre(s) 64 m²
Bilan énergétique
Diagnostics énergetiques- Surface 64 m²
- séjour 24,60 m²
- 2 chambre(s)
- 1 salle(s) d'eau
- construit en 2019
- Chauffage individuel : autre (electrique)
- 2ème étage
- ascenseur
- terrasse
- interphone
- accès handicapé
Composition
Composition de ce bienRez-de-chaussée
- cuisine m²
- parking intérieur m²
- terrasse 25 m²
- entrée 6.9 m²
- séjour 24.6 m²
- cellier 2 m²
- salle de douche 5.2 m²
- chambre 11.9 m²
- chambre 11.2 m²
- toilettes 2.2 m²
Financier
Informations financièresAutour du bien
Découvrez le quartier* CC : Charges comprises
