Page suivante
Page précédente
Canet plage (66140)

Appartement 3 pièce(s) 2 chambre(s) 63 m²

1
Ascenseur
1
CC*
Réf 5457085
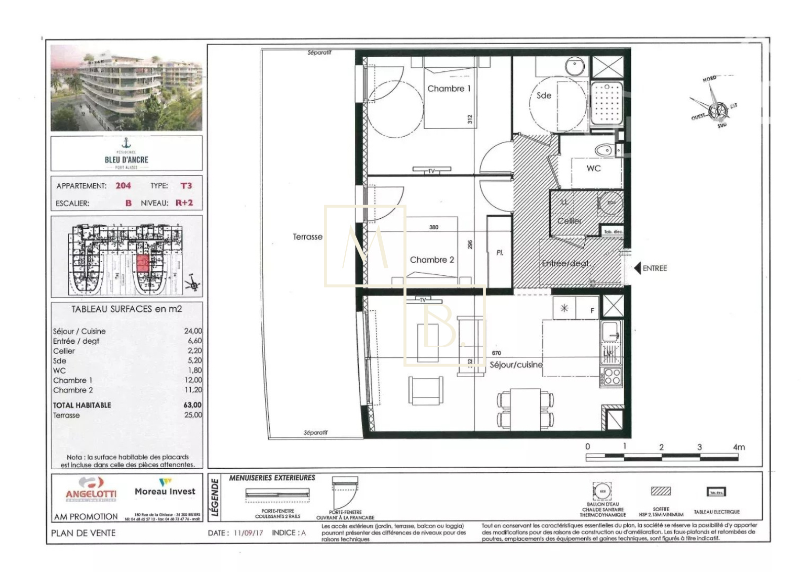
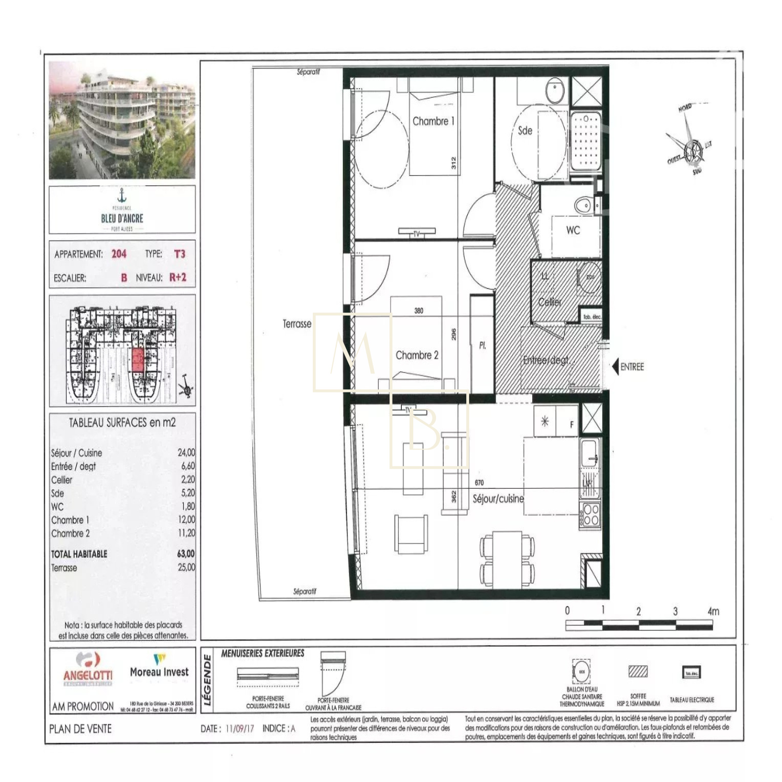
PRESTIGE, A louer, Canet Plage, T3 NEUF 63m² avec terrasse 25m², parking, cellier, clim et piscine sur toit. Dans résidence de standing Bleu d'Ancre élue meilleur programme région, venez découvrir en avant première ce bel appartement aux Ports Alizé, exposé Ouest, au R+2, à proximité des commerces et des plages. Comprenant: entrée/dégagement, séjour/cuisine aménagée et équipée donnant accès à une superbe terrasse filante, un cellier, deux chambres, une salle d'eau design et un WC séparé. Vous disposerez de la climatisation, d'une place de parking sécurisée en sous-sol, d'une piscine collective sur toît, système domotique intégré, mensuiseries alu double vitrage, chauffage électrique individuel, fibre, visiophone. DPE en cours, remis au bail. DISPONIBLE 1er novembre. Loyer: 775€/mois dont 95€ de charges (eau froide incluse). Dépôt de garantie: 680€. Honoraires à la charge du locataire: 504€ (honoraires de visite, constitution de dossier, rédaction du bail) + 189€ (frais d'état des lieux). Votre interlocutrice privilégiée: Célia Bihi, agent commercial (immatriculé au RSAC de Montpellier n° 832 378 533) de l'agence Cimm Immobilier Montpellier.

Bilan énergétique

Diagnostics énergetiques
A propos de ce bien Caractéristiques de ce bien
  • Surface 63 m²
  • séjour 24 m²
  • 2 chambre(s)
  • 1 salle(s) d'eau
  • construit en 2019
  • Chauffage individuel : autre (electrique)
  • 2ème étage
  • ascenseur
  • terrasse
  • interphone
  • accès handicapé

Composition

Composition de ce bien

Rez-de-chaussée

  • cuisine
  • parking intérieur
  • entrée 6.6 m²
  • séjour 24 m²
  • cellier 2.2 m²
  • salle de douche 5.2 m²
  • chambre 12 m²
  • chambre 11.2 m²
  • toilettes 1.8 m²
  • terrasse 25 m²

Financier

Informations financières
Dont état des lieux 189 €
Dépôt de garantie TTC 680 €
Charges locatives (provision donnant lieu à régularisation annuelle) 95 €

Autour du bien

Découvrez le quartier
Célia BIHI Négociatrice

* CC : Charges comprises