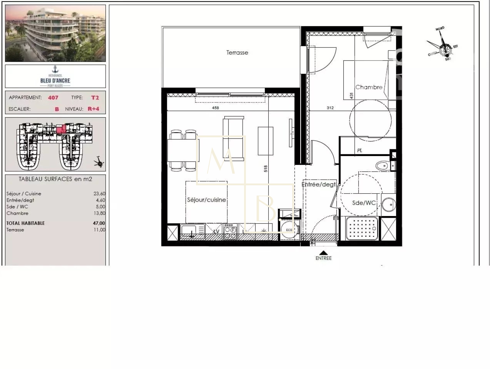
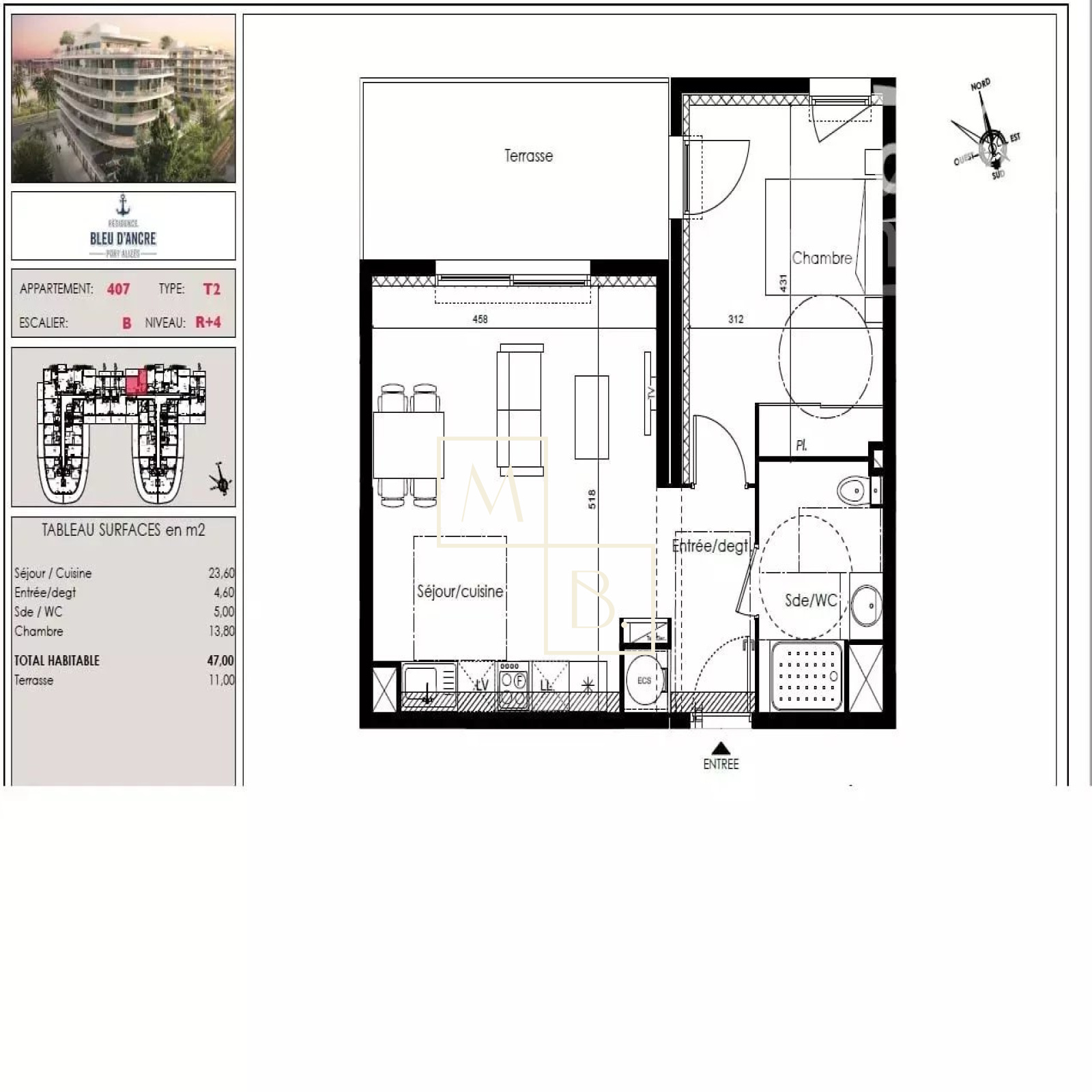
Appartement 2 pièce(s) 1 chambre(s) 47 m²
Bilan énergétique
Diagnostics énergetiques- Surface 47 m²
- séjour 23,60 m²
- 1 chambre(s)
- 1 salle(s) d'eau
- construit en 2019
- Chauffage individuel : autre (electrique)
- 4ème étage
- ascenseur
- terrasse
- interphone
- accès handicapé
Composition
Composition de ce bienRez-de-chaussée
- cuisine m²
- toilettes m²
- parking intérieur m²
- entrée 4.6 m²
- séjour 23.6 m²
- chambre 13.8 m²
- salle de douche 5 m²
- terrasse 11 m²
Financier
Informations financièresAutour du bien
Découvrez le quartier* CC : Charges comprises
