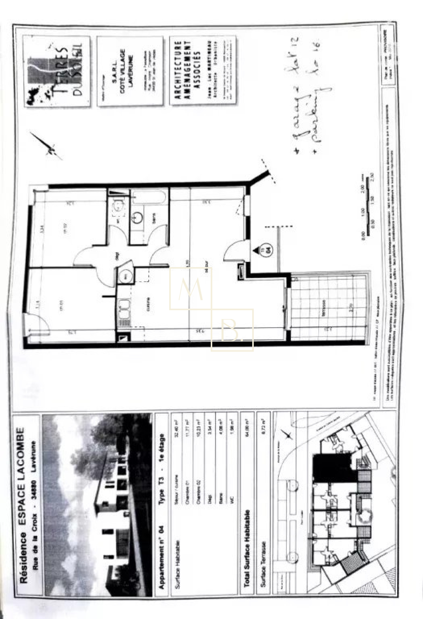
Appartement 3 pièce(s) 2 chambre(s) 64 m²
Bilan énergétique
Diagnostics énergetiques- Surface 64 m²
- séjour 32,40 m²
- 2 chambre(s)
- 1 salle(s) de bain
- construit en 2011
- Chauffage individuel : autre (electrique)
- 1 garage(s)
- 1 parking(s)
- 1er étage
- vue Dégagée,null
- terrasse
- interphone
Composition
Composition de ce bienRez-de-chaussée
- cuisine m²
- parking extérieur m²
- garage m²
- séjour 32.4 m²
- chambre 11.77 m²
- chambre 10.23 m²
- dégagement 3.54 m²
- salle de bains 4.08 m²
- toilettes 1.98 m²
- terrasse 8.72 m²
Financier
Informations financièresAutour du bien
Découvrez le quartier* CC : Charges comprises
