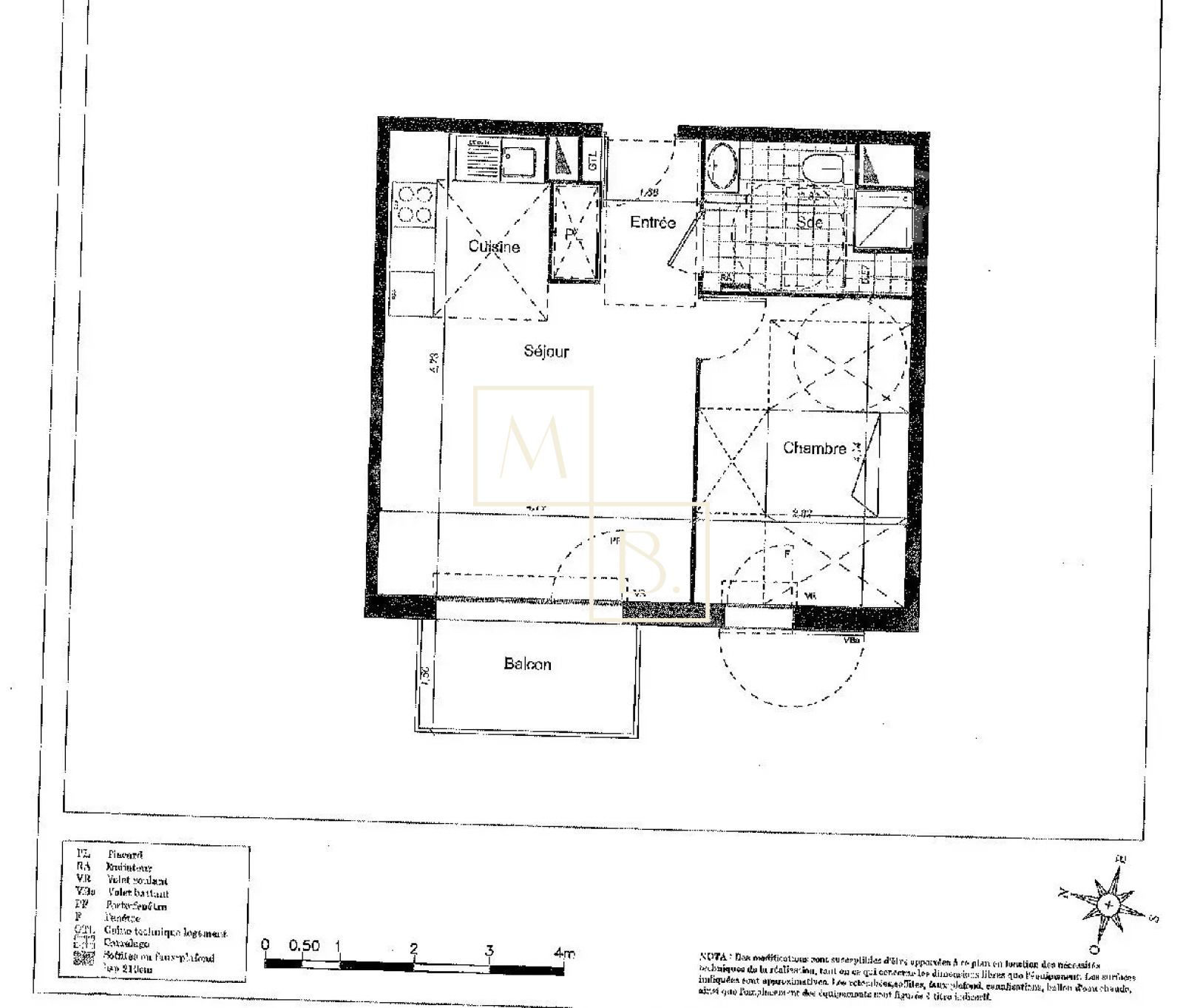
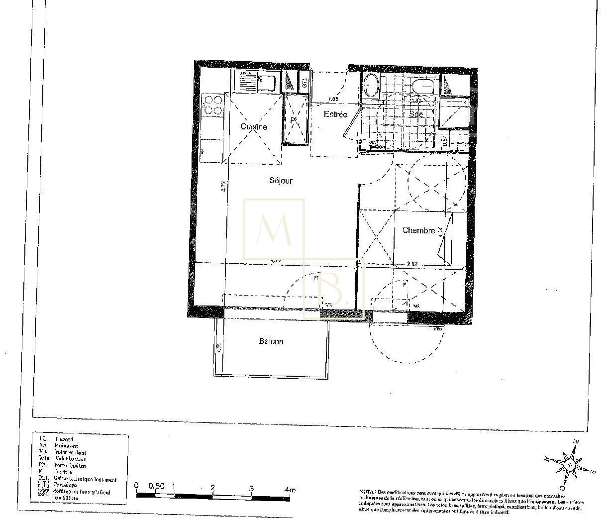
Appartement 2 pièce(s) 1 chambre(s) 42.44 m²
Bilan énergétique
Diagnostics énergetiques- Surface 42,44 m²
- séjour 25,56 m²
- 1 chambre(s)
- 1 salle(s) d'eau
- construit en 2018
- Chauffage collectif : autre (gaz)
- 1er étage
- ascenseur
- balcon
- interphone
- accès handicapé
Composition
Composition de ce bienRez-de-chaussée
- cuisine m²
- séjour 25.56 m²
- toilettes m²
- parking intérieur m²
- balcon m²
- pièce de vie 25.55 m²
- chambre 11.68 m²
- salle de douche 5.21 m²
Financier
Informations financièresAutour du bien
Découvrez le quartier* CC : Charges comprises
