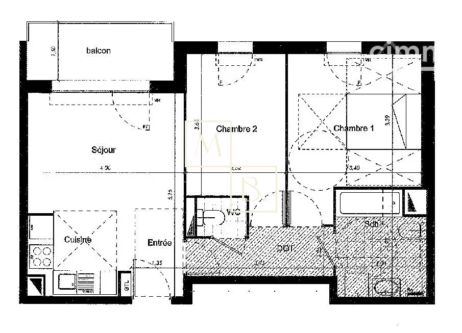
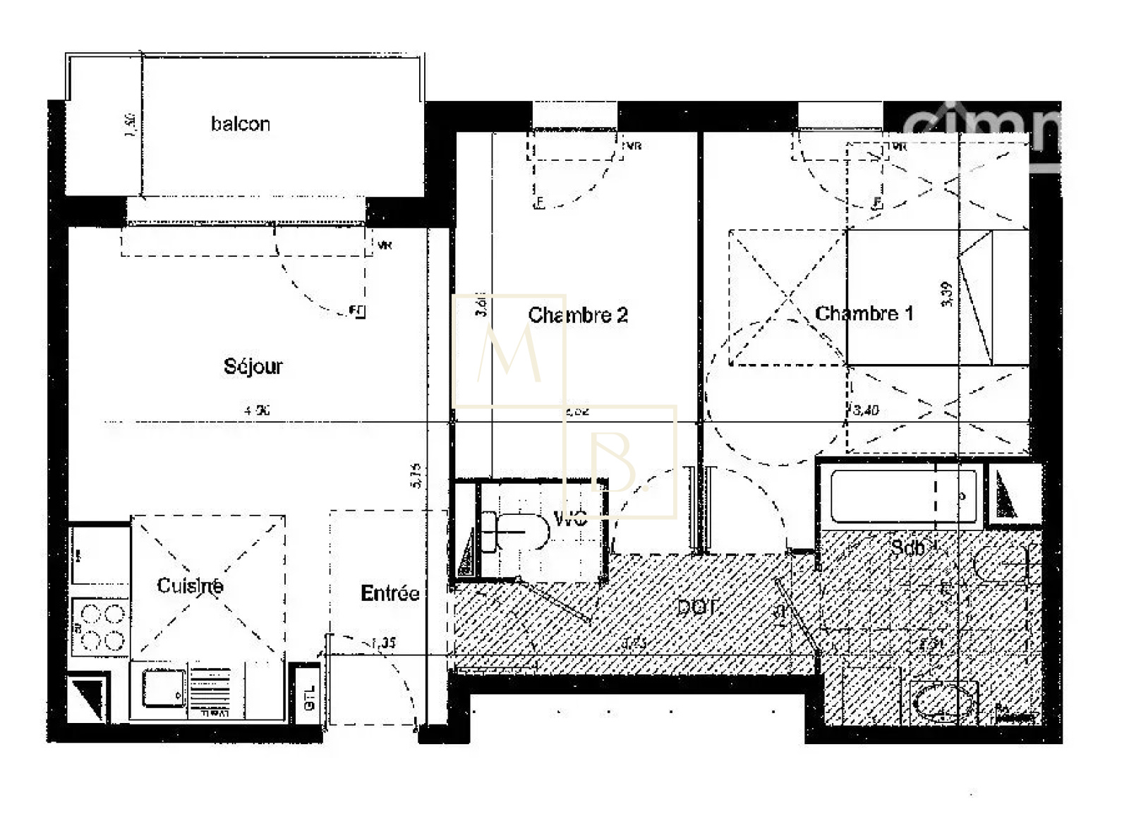
Appartement 3 pièce(s) 2 chambre(s) 53.55 m²
Bilan énergétique
Diagnostics énergetiques- Surface 53,55 m²
- séjour 20 m²
- 2 chambre(s)
- 1 salle(s) de bain
- construit en 2018
- Chauffage collectif : autre (gaz)
- 2ème étage
- ascenseur
- balcon
- interphone
- accès handicapé
Composition
Composition de ce bienRez-de-chaussée
- cuisine m²
- séjour 20 m²
- parking intérieur m²
- balcon m²
- entrée 20 m²
- dégagement 4.2 m²
- chambre 12.61 m²
- chambre 9.75 m²
- salle de bains 5.74 m²
- toilettes 1.25 m²
Financier
Informations financièresAutour du bien
Découvrez le quartier* CC : Charges comprises
