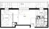
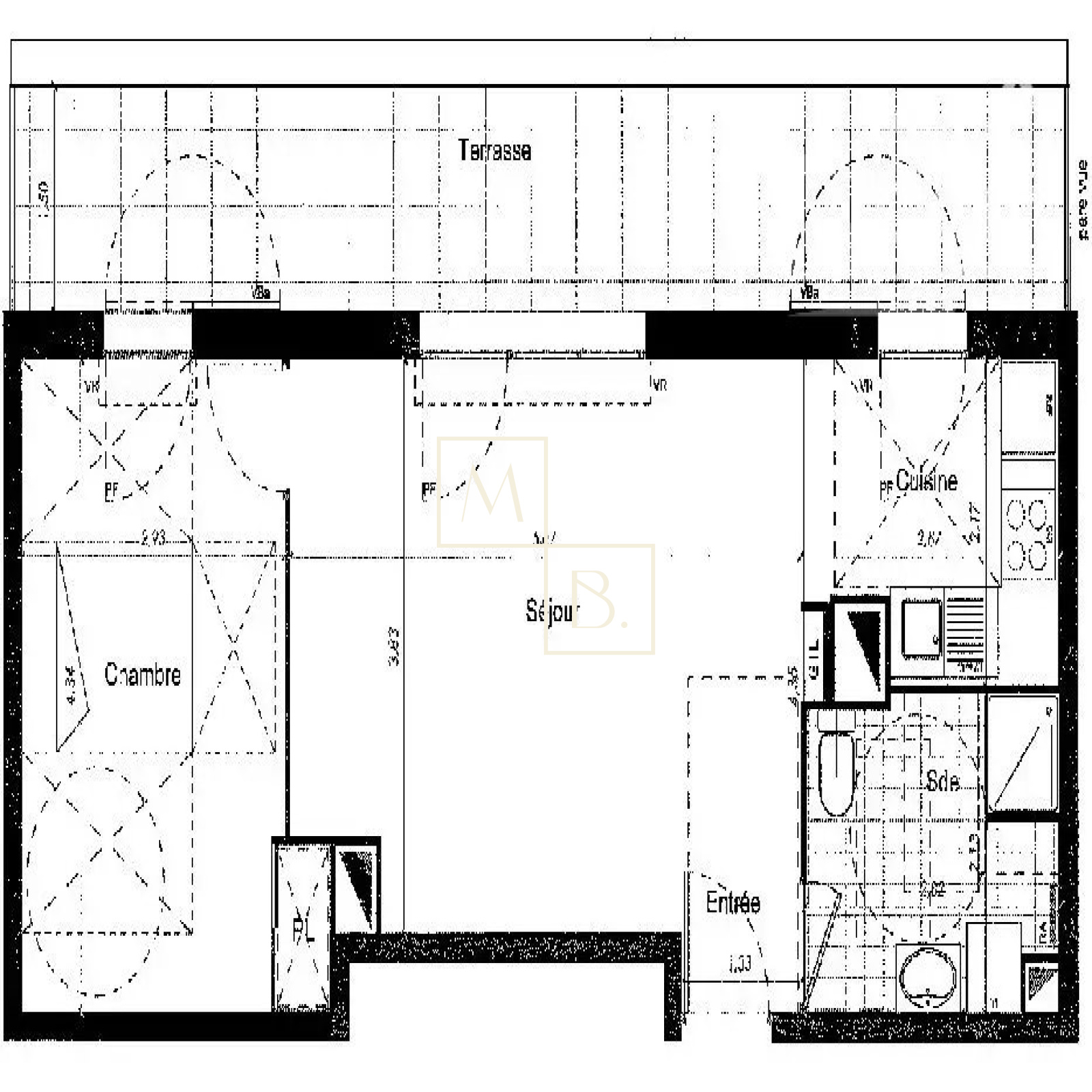
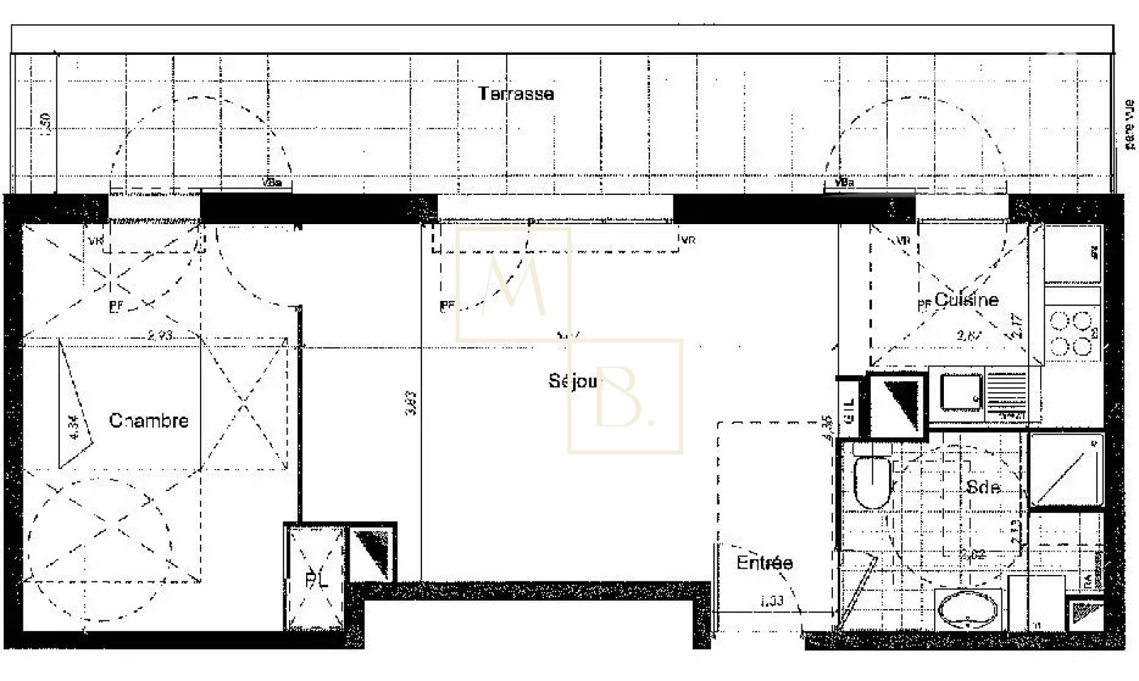
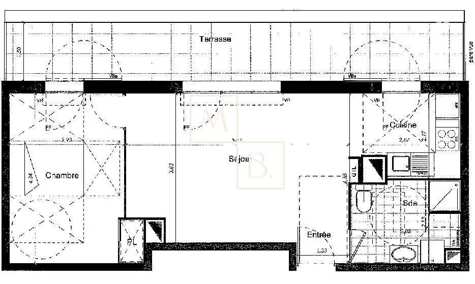
Appartement 2 pièce(s) 1 chambre(s) 46.59 m²
Bilan énergétique
Diagnostics énergetiques- Surface 46,59 m²
- séjour 21,73 m²
- 1 chambre(s)
- 1 salle(s) d'eau
- construit en 2018
- Chauffage collectif : autre (gaz)
- 3ème étage
- ascenseur
- terrasse
- interphone
- accès handicapé
Composition
Composition de ce bienRez-de-chaussée
- séjour 21.73 m²
- toilettes m²
- parking intérieur m²
- terrasse 17 m²
- entrée 21.73 m²
- cuisine 5.64 m²
- chambre 13.28 m²
- salle de douche 5.94 m²
Financier
Informations financièresAutour du bien
Découvrez le quartier* CC : Charges comprises
