Page suivante
Page précédente
Mèze (34140)

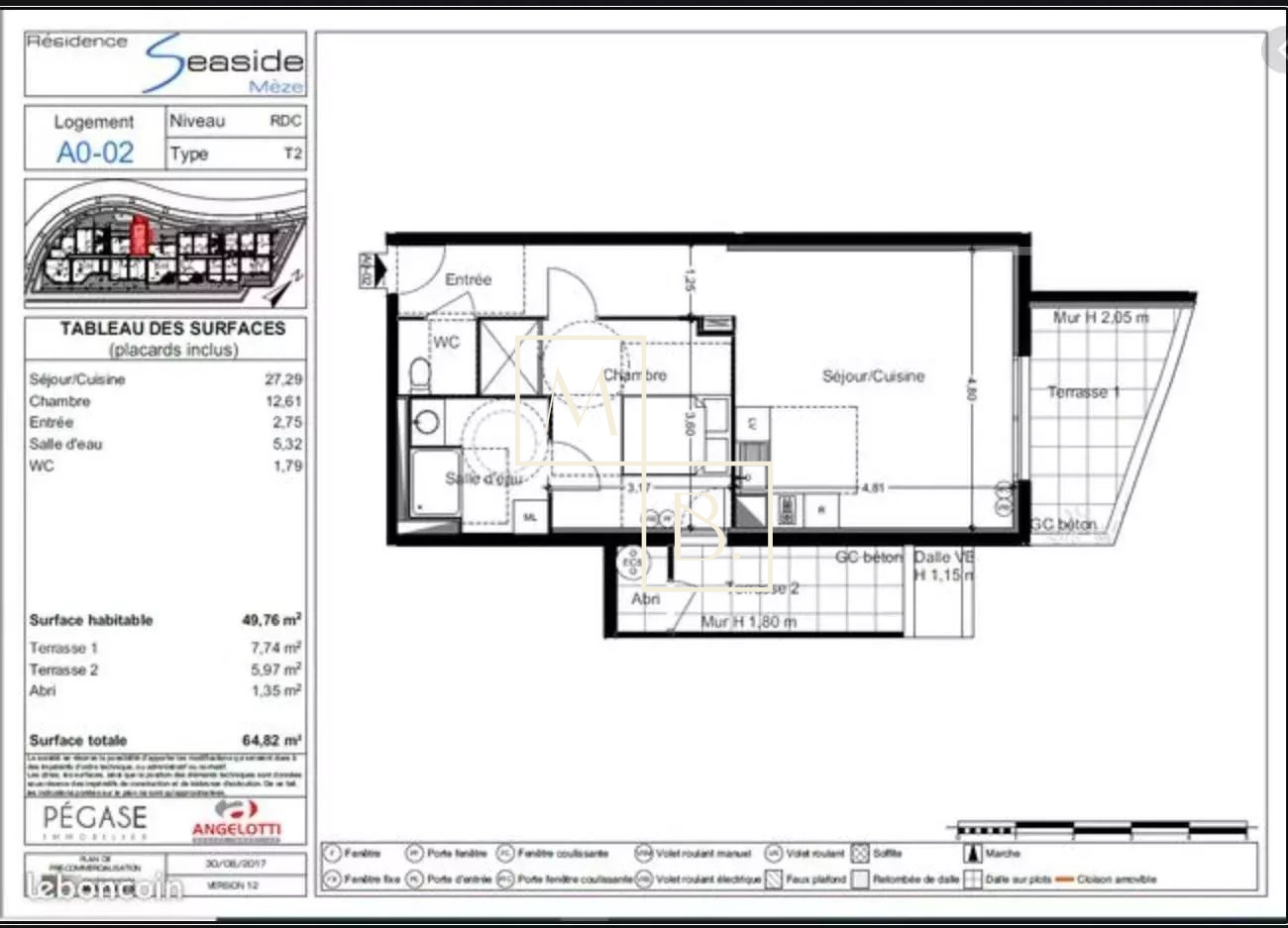
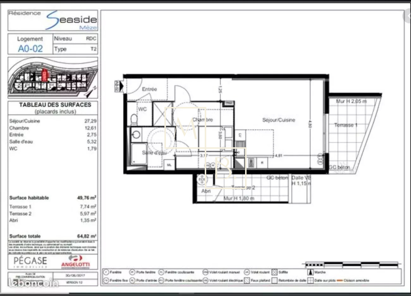
Appartement 2 pièce(s) 1 chambre(s) 49.76 m²

1
Balcon
Ascenseur
CC*
Réf 5457225
Location SUPERBE T2 NEUF MEZE 50m² avec 2 terrasses + parking. Au sein d'une jolie ville de l'Hérault, sur l'étang de Thau, avec ses commerces, commodités, son port, ses plages, Mèze est un endroit de villégiature animé et dynamique. Résidence NEUVE Seaside aux lignes contemporaines, totalement sécurisée, venez découvrir ce spatieux T2 en RDC de 49,76m² habitable composé par: une entrée, une grande chambre donnant sur une 1è terrasse, une salle d'eau, un WC séparé, un séjour/cuisine équipée disposant d'une seconde terrasse. Vous disposerez également d'une place de parking privative en sous-sol, acsenseur, menuiseries PVC double vitrage, volets roulants électriques et centralisés, visiophone et fibre. LIBRE DE SUITE. Soumis au dispositif Pinel. DPE en cours de réalisation, sera annexé au bail. Loyer: 650€/mois dont 70€ de charges. Dépôt de garantie: 580€. Honoraires à la charge du locataire: 398,08€ (honoraires de visite, constitution de dossier, rédaction du bail) + 149,28€ (frais d'état des lieux). Votre interlocutrice privilégiée: Célia Bihi, agent commercial (immatriculé au RSAC de Montpellier n° 832 378 533) de l'agence Cimm Immobilier Montpellier.

Bilan énergétique

Diagnostics énergetiques
A propos de ce bien Caractéristiques de ce bien
  • Surface 49,76 m²
  • séjour 27,29 m²
  • 1 chambre(s)
  • 1 salle(s) d'eau
  • construit en 2020
  • Chauffage individuel : autre (gaz)
  • ascenseur
  • balcon
  • terrasse
  • interphone
  • accès handicapé

Composition

Composition de ce bien

Rez-de-chaussée

  • cuisine
  • parking intérieur
  • entrée 2.75 m²
  • toilettes 1.79 m²
  • chambre 12.61 m²
  • salle de douche 5.32 m²
  • séjour 27.29 m²
  • balcon 5.97 m²
  • terrasse 7.74 m²

Financier

Informations financières
Dont état des lieux 149,28 €
Dépôt de garantie TTC 580 €
Charges locatives (provision donnant lieu à régularisation annuelle) 70 €

Autour du bien

Découvrez le quartier
MAISON B. Agence

* CC : Charges comprises