Page suivante
Page précédente
Juvignac (34990)

Appartement 3 pièce(s) 2 chambre(s) 56.55 m²

1
Ascenseur
Réf 7212019
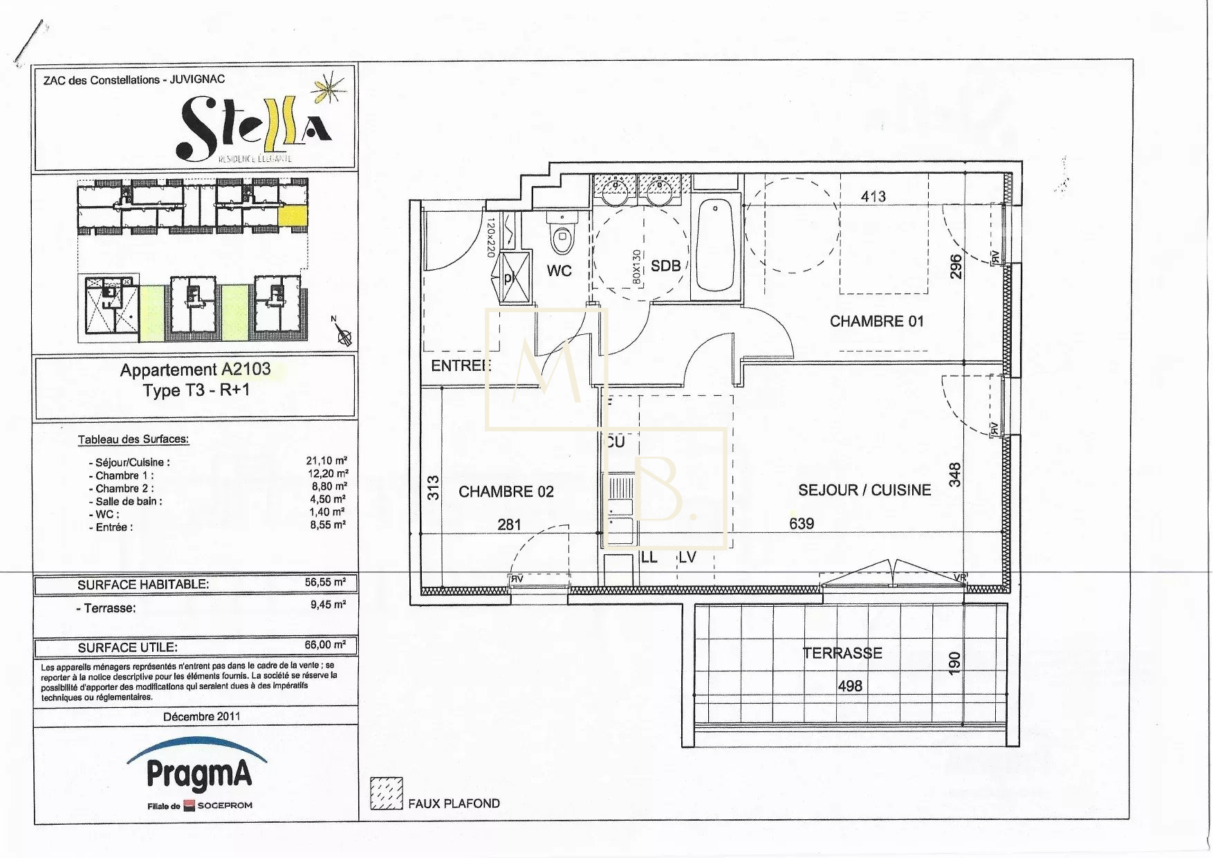
A VENDRE- JUVIGNAC - T3 de 57 m² AVEC TERRASSE ET PARKING Situé aux Constellations à Juvignac, dans une résidence sécurisée de 2014, au pied de laquelle vous aurez un accès direct à de nombreux commerces, arrêt de tram, bus, parc, salle de sport et autres infrastructures. Au 1er étage avec ascenseur, appartement lumineux, en bon état général et bien agencé. Il comprend : une entrée sur couloir avec placard, un séjour climatisé avec cuisine ouverte aménagée et équipée donnant accès à une terrasse/loggia de 9.45m² exposé SUD, 2 chambres, une salle de bains et d'un WC séparé. Menuiseries double vitrage PVC, eau froide, eau chaude et chauffage gaz collectif (compris dans les charges de copropriété). Place de parking privative en sous-sol. DISPONIBLE DE SUITE. Montant estimé des dépenses annuelles d'énergie pour un usage standard, entre 440 € et 660 € par an. Prix moyens des énergies indexés sur 2023 (abonnements compris). Bien soumis au statut de la copropriété comprenant 90 lots d'habitations. Montant moyen annuel de la quote-part du budget prévisionnel à la charge du vendeur : 2 400 € Honoraire à la charge du vendeur. Votre interlocuteur privilégié : Olivier BIHI, gérant de l'agence Cimm immobilier Montpellier.

Bilan énergétique

Diagnostics énergetiques
A propos de ce bien Caractéristiques de ce bien
  • Surface 56,55 m²
  • 2 chambre(s)
  • 1 salle(s) de bain
  • Chauffage collectif : radiateur (electrique)
  • exposition Nord-Ouest
  • 1er étage
  • ascenseur
  • vue Ville
  • terrasse
  • interphone

Composition

Composition de ce bien

Rez-de-chaussée

  • séjour/cuisine 21.1 m²
  • chambre 12.2 m²
  • chambre 8.8 m²
  • salle de bains 4.5 m²
  • toilettes 1.4 m²
  • entrée 8.55 m²
  • terrasse 9.45 m²

Financier

Informations financières
Les honoraires d'agence seront intégralement à la charge du vendeur  
Charges 168 €

Autour du bien

Découvrez le quartier

Simulation

Calcul des mensualités
* Champs obligatoires
BIHI Olivier Négociateur