Page suivante
Page précédente
Montpellier (34000)

Appartement 3 pièce(s) 2 chambre(s) 54 m²

1
1
Réf 5456757
A VENDRE à Montpellier, Euromédecine, appartement T3 de 54m2 avec terrasse et garage fermé en sous-sol. Secteur prisée, environnement boisé en face du Domaine d'O, à 2 pas des universités, des campus, des commodités et à 3min à pied du Tram ligne 1 arrêt Château d'O. Copropriété privée et sécurisée, construite en 2009 avec interphone, digicode et portail électrique. Appartement 3 pièces situé en rez-de-chaussée, exposé sud-ouest côté jardin avec vue dégagée sur la verdure. Lumineux et bien agencé il comprend : entrée avec placard, séjour avec coin cuisine aménagée ouvert sur une terrasse, 2 chambres avec placard/penderie, salle de bains, WC séparés. Double vitrage menuiserie pvc, chauffage électrique. Terrasse de 12m2 sans vis-à-vis. Grand garage fermé en sous-sol de 17m2. Faibles charges ! Bien soumis au statut de la copropriété comprenant 139 lots d'habitations. Montant moyen annuel de la quote-part du budget prévisionnel à la charge du vendeur : 841 €. Aucune procédure en cours menée sur le fondement des articles 29-1 A et 29-1 de la loi n° 65-557 du 10 juillet 1965 et de l'article L. 615-6 du CCH. Honoraires à la charge du vendeur. Votre interlocuteur privilégié : Olivier BIHI, gérant de l'agence Cimm immobilier Montpellier.

Bilan énergétique

Diagnostics énergetiques
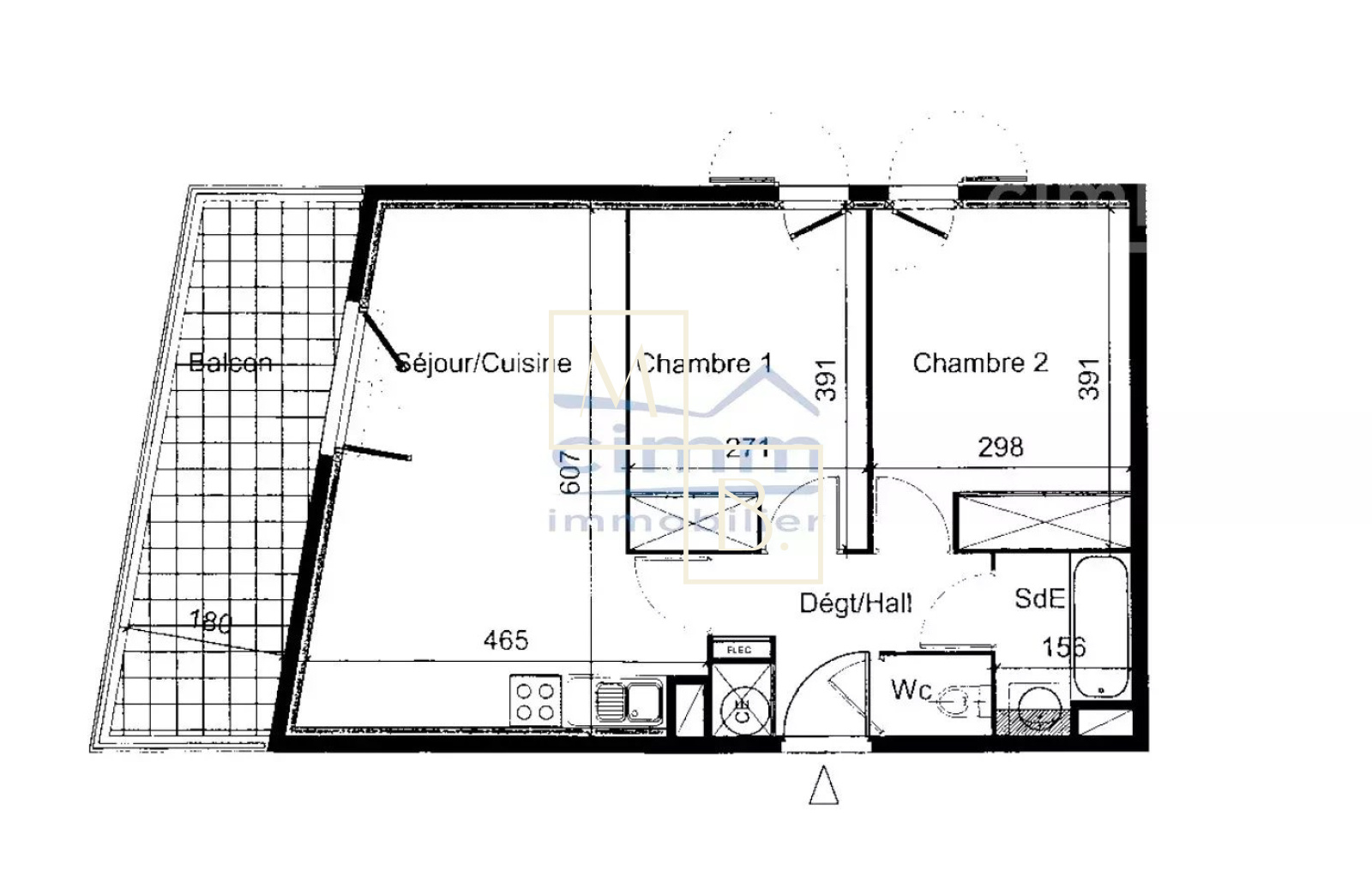
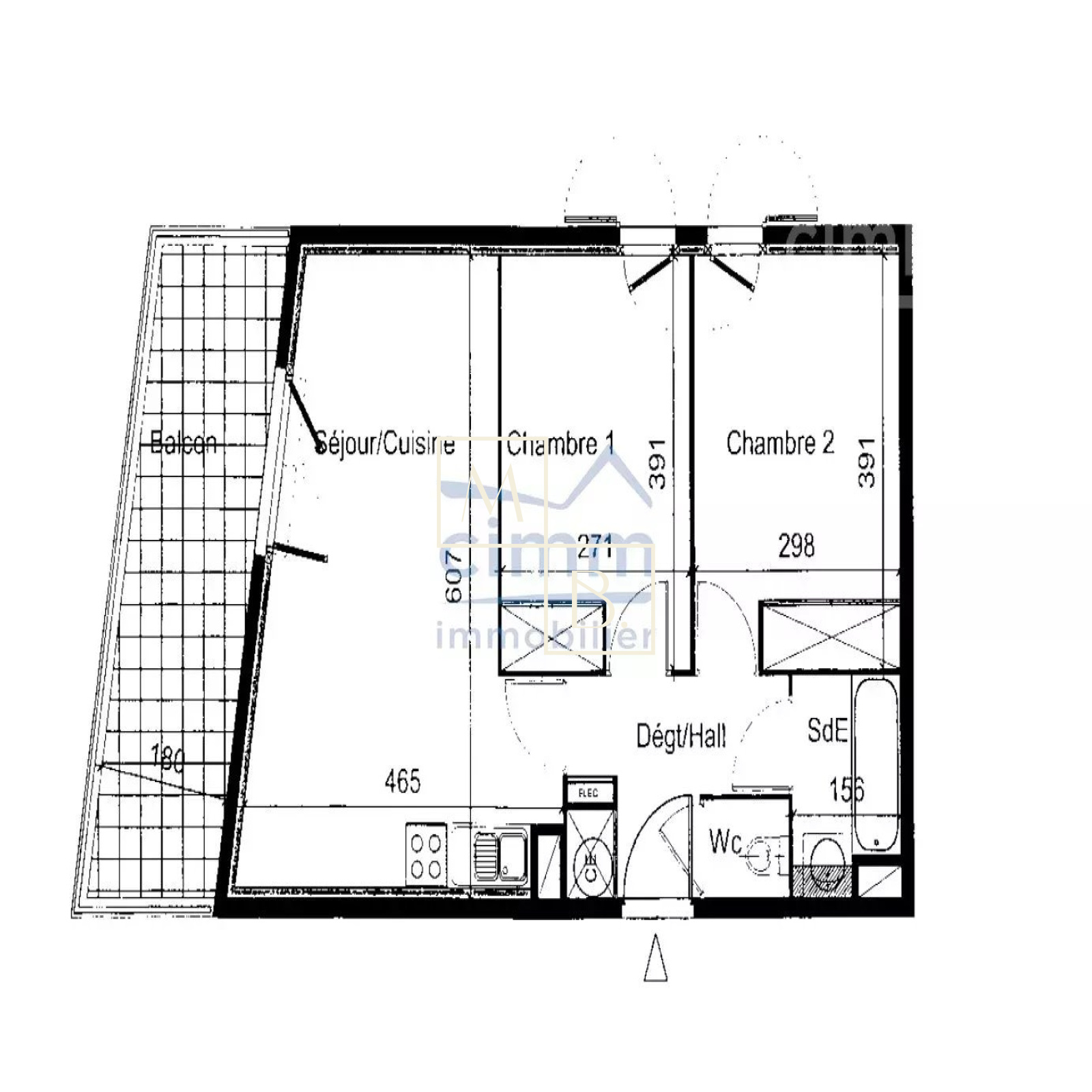
A propos de ce bien Caractéristiques de ce bien
  • Surface 54 m²
  • séjour 21,40 m²
  • 2 chambre(s)
  • 1 salle(s) de bain
  • construit en 2009
  • Chauffage individuel : autre (electrique)
  • 1 garage(s)
  • vue Dégagée,null
  • terrasse
  • interphone

Composition

Composition de ce bien

Rez-de-chaussée

  • cuisine
  • entrée 5.19 m²
  • séjour 21.4 m²
  • chambre 10.71 m²
  • chambre 11.87 m²
  • salle de bains 2.93 m²
  • toilettes 1 m²
  • terrasse 12 m²
  • garage 17 m²

Financier

Informations financières
Charges 66 €
Taxe foncière annuelle 1 079 €

Autour du bien

Découvrez le quartier

Simulation

Calcul des mensualités
* Champs obligatoires
BIHI Olivier Négociateur